

Еще до начала 2000 годов розетка в ванной была под запретом, что было прописано в положениях ПУЭ. С появлением новых материалов и способов монтажа, одни требования ужесточились, а другие стали мягче, в результате чего розетка для ванной, хоть и с рядом оговорок, но перестала попадать в разряд запрещенных решений.
Зонирование ванной комнаты, согласно требованиям ПУЭ


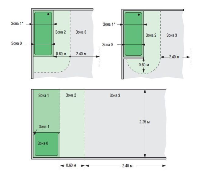
В первую очередь оговорки, про которые идет речь, регламентируют место, где разрешена установка розетки в ванной. Для этого в помещении отмечается где будут смонтированы ванная, душ, умывальник или унитаз – т.е. любой предмет к которому по трубам подводится вода.
- Каждое из мест установки считается так называемой «зоной 0», в которой категорически запрещена установка розеток. В ней можно использовать только те электроприборы, что непосредственно предназначены для ванной комнаты, имеют защиту от проникновения воды и питаются от напряжения не выше 12 вольт.
- Поверхность стены вверх и вниз от нулевой зоны называется «зона 1», в которой также исключены любые розетки, но разрешается подключать светильники с классом защиты IP-x5, позволяющим устройству выдерживать поливание водой. Правила не запрещают располагать здесь и бойлеры, но на практике они будут только мешать.
- На расстоянии 60 см влево и вправо от габаритов первой зоны идет «зона 2». Здесь также запрещен монтаж розеток, но разрешена установка электроприборов, имеющих класс защиты IP-x4, что позволяет устройству находиться под дождем. Еще расположение зоны 2 зависит от наличия стационарной перегородки между душем и остальным помещением. Если она есть, то тогда зона высчитывается как окружность радиусом 60 см и с центром в крайней точке перегородки.
- Расстояние 2,4 метра от границы второй зоны называется «зона 3», считающейся относительно безопасным расстоянием до источника воды. Здесь разрешено устанавливать розетки 220 вольт с классом защиты от водяных брызг IP-x4 и дополнительно оборудованные соответствующей защитой.


Из этих правил ясно, что если в ванной комнате стоит душевая кабина, а в метре от нее расположен умывальник, то между ними ставить розетку нельзя. При этом здесь разрешается повесить бойлер, который напрямую запитан проводом от сети или включен в розетку, находящуюся в разрешенной зоне 3. Если используется подсветка зеркала, то лампы освещения должны быть рассчитаны на напряжение не выше 12 вольт.
Где еще разрешена установка
Есть несколько курьезное дополнение к правилам про зоны, в которых можно или нельзя размещать розетки. Каждая из них идет не до самого потолка – высота любой из них составляет 2,25 метра. Это значит, что если высота потолков 2,5 метра, то расположение розеток в ванной комнате может быть даже над зоной 1, но на высоте 2,3 метра. Таким образом, дополнительно выдерживается и требование располагать проводку в 15 см от потолка.
Это смешное на первый взгляд правило позволяет «выкрутиться» из ситуации и сделать все согласно ПУЭ когда помещение маленькое, а розетки нужны для стационарных устройств – тех же бойлера и стиральной машинки.
Виды розеток по уровню влагозащищенности
Даже если розетка расположена в нужной зоне и по всем правилам, на нее все равно могут попадать брызги воды или воздействовать конденсат, который неизбежно будет возникать в ванной комнате. Исходя из этого, необходимо подбирать влагозащищенные розетки для ванной, токопроводящие части которых защищены от попадания воды на достаточном уровне.


На любой розетке производитель обязан наносить маркировку стандарта IP-XY, в которой вместо XY будут проставлены цифры от 0 до 8. Первая из цифр показывает защищенность механизма от попадания в него различных предметов, а вторая показывает уровень его защиты от влаги:
- 0 – Контакты ничем не защищены – даже от случайных брызг.
- 1 – На контакты не попадут брызги, летящие сверху.
- 2 – Защита от моросящего дождя, когда уклон брызг не превышает 15°
- 3 – Устройство может выдерживать сильный дождь с уклоном брызг до 60°
- 4 – Контакты защищены от брызг со всех направлений.
- 5 – Такой прибор можно поливать со шланга.
- 6 – Защита для приборов, которые могут попасть под волну.
- 7 – Защита от кратковременного погружения на глубину до одного метра.
- 8 – Полностью водонепроницаемое устройство.
Для ванной комнаты нужны розетки и другие электроприборы с классом защиты IP-x4 и выше.
Требования к электропроводке и количество розеток
Самые мощные электроприборы, для которых проводится установка силовой розетки в ванной комнате – это бойлер, стиральная машина и фен. Они потребляют порядка 1,5-3 киловатт каждое, в зависимости от модели. Дополнительно здесь могут использоваться такие устройства как плойка, электробритва и подобные, которые не отличаются высокой мощностью, но нуждаются в отдельном подключении.


Если бойлер не подключен к сети напрямую (некоторые из них можно запитать только так), то для него и стиральной машинки в любом случае нужны отдельные розетки – лучше всего, если провода к ним будут проложены к каждой отдельно от вводного щитка (тем более, что распределительные коробки в помещениях с повышенной влажностью ставить нельзя). Также розетка нужна недалеко от умывальника – вряд ли в нее будет включаться сразу несколько устройств, но лучше если она будет двойная.
Как итог – на количество розеток ограничений никакими правилами и нормами не налагается – оно подбирается в зависимости от того, сколько планируется включать приборов.
Сечение проводов, что будут прокладываться в ванной, берется из расчета 2,5 мм² для розеток и 1,5 мм² для освещения – этого должно быть достаточно при указанной выше мощности устройств. В противном случае, сечение проводов надо подбирать индивидуально.
ПУЭ настоятельно рекомендуют выполнять прокладку проводки закрытым способом – внутри стены. Если по каким-то причинам нужно проложить провода по поверхности стены, то во-первых надо использовать кабель с соответствующим классом изоляции, а во-вторых – прокладывать его в полиэтиленовой гофротрубе. Металлическую использовать нельзя, так как при коротком замыкании она может привести к поражению человека электрическим током.
Защита: заземление, УЗО и разделительный трансформатор


Заземляющий проводник должен подводиться не только к розеткам в ванной комнате, но и к любым другим в квартире или доме. Это гарантированная защита, предохраняющая человека от воздействия на организм фазы, которая может появиться на металлических частях корпусов электроприборов.
Автоматический выключатель отключает подачу электричества в случае возникновения в сети опасной перегрузки.
Устройство защитного отключения срабатывает в том случае, если возникает ток утечки, что происходит при замыкании фазы на корпус прибора, подключенного к розетке с заземляющим контактом. Есть способы подключения УЗО без заземления, но эффективнее всего этот защитный прибор срабатывает в том случае, если току утечки есть куда уйти. При правильном подключении и выбора защитного устройства, максимальный ток срабатывания УЗО составляет 30 мА.
Последнее из перечисленных устройств, несмотря на его полезность практически не применяется, так как требует достаточно больших капиталовложений как на покупку трансформатора, так и на его установку. По сути это стандартный трансформатор, но он не повышает или понижает напряжение, а оставляет его неизменным. Его защитные функции заключаются в том, что линия, которую он питает, напрямую не связана с общей цепью, а следовательно нет обычной в таком случае связи человека с землей. Как итог – ток утечки, который может появиться на корпусе электроприбора при пробивании на него фазы для человека будет не опасен.
Как выполняется монтаж


За исключением необходимости использовать влагозащищенные устройства, установка такой розетки в ванной комнате ничем не отличается от стандартной процедуры монтажа. Если будет применяться закрытая электропроводка, то надо заранее рассчитать в каком месте и как сделать розетки. В этих точках сверлятся отверстия для подрозетников и к ним в стене прорезаются штробы, куда будет укладываться проводка.
Так как ванная комната всегда облицовывается кафелем, то провода укладываются в полученное отверстие и место его расположения тщательно вымеряется. Когда кафель будет уложен, то в нем высверливается дырка из которой извлекается провод и на это место устанавливается розетка.
Если отделочные работы уже закончены, но надо добавить еще одну розетку в ванной, то используется открытый тип электропроводки, которая укладывается в пластиковой гофротрубе или кабель-канале. Сами розетки прикручиваются дюбелями, для закрепления которых в плитке предварительно сверлятся отверстия.
Что в итоге
Учитывая количество современных электроприборов, розетка в любом случае нужна и в ванной комнате. Главное в этом вопросе это правильно выбрать место для ее установки, подобрать устройство с соответствующим классом влагозащищенности и обеспечить защиту самого человека от поражения электрическим током.
В случае, когда для монтажа розеток приглашаются электрики со стороны, то не помешает уточнить у них, где и как надо производить монтаж этих устройств. Если мастерам без разницы куда их устанавливать, то стоит задуматься про их квалификацию и необходимость получения таких услуг.